
“與您相遇,絕非偶然”,非常感謝您能在互聯網浩瀚的信息中點擊進入“銘澤”網站,如果能為您提供【斗式提升機】方面的技術服務,將是銘澤人的榮幸!匠心專注,品質鑄造品牌;接下來您將看到的是銘澤斗式提升機技術為您準備的斗式提升機的技術信息,希望對您的選擇能有幫助!
一、設備工作原理
斗式提升機結構簡單,維護方便,依靠膠帶固定提料斗。板鏈式、環鏈斗式運行平穩,掏取式裝料,混合式或重力卸料,斗式提升機輪緣采用組合鏈輪,更換方便,鏈輪輪緣經特殊處理壽命長,下部如采用重力自動張緊裝置,能保持恒定的張力,避免打滑或脫鏈,同時在料斗遇阻時,有一定的容讓性能夠有效地保護運動部件,物料溫度不超過250℃。
二、設備主要特點
1. 維護方便,壽命長。機殼鋼板加厚、剛性好。
2. 輸送物料的溫度高可達250℃。提升高度運行平穩可靠,噪音小,維護方便。
3. 中節機殼具有單通道和雙通道兩種形式。改進機型的提升輸送量比普通機型提高30%以上。
4. 提升機環鏈采用低合金鋼鍛造,并經滲碳淬火處理,具有極高的抗拉強度和耐磨性能。
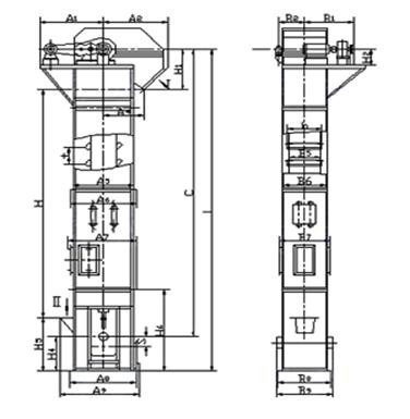
三、設備結構
斗式提升機機由運行部分(料斗與牽引膠帶),帶有傳動滾筒的上部區段,帶有拉緊滾筒的下部區段,中間機殼,驅動裝置,逆止制動裝置等組成,適用于向上輸送松散密度ρ<1.5t/m3粉狀、粒狀和小塊狀的無磨琢性和半磨琢性散狀物料,如煤、砂、焦末、水泥、碎礦石等。
四、技術參數
|
提升機型號 |
TD160 |
TD250 |
TD315 |
TD400 |
TD500 |
|||||||||||||||||
|
料斗型式 |
Q |
H |
Zd |
Sd |
Q |
H |
Zd |
Sd |
Q |
H |
Zd |
Sd |
Q |
H |
Zd |
Sd |
Q |
H |
Zd |
Sd |
||
|
輸送量 |
離心式 |
(m2/h) |
9 |
16 |
16 |
27 |
20 |
36 |
38 |
59 |
28 |
50 |
42 |
67 |
40 |
76 |
68 |
110 |
63 |
116 |
96 |
154 |
|
混合式 |
/ |
/ |
20 |
38 |
32 |
50 |
32 |
60 |
54 |
85 |
45 |
84 |
70 |
112 |
||||||||
|
料斗 |
斗寬 |
(mm) |
160 |
250 |
315 |
400 |
500 |
|||||||||||||||
|
斗容 |
(L) |
0.49 |
0.9 |
1.2 |
1.9 |
1.22 |
2.24 |
3.0 |
4.6 |
1.95 |
3.55 |
3.75 |
5.8 |
3.07 |
5.6 |
5.9 |
9.4 |
4.84 |
9.0 |
9.3 |
14.9 |
|
|
斗距 |
(mm) |
280 |
350 |
360 |
450 |
400 |
500 |
480 |
560 |
500 |
625 |
|||||||||||
|
輸送帶 |
寬度 |
(mm) |
200 |
300 |
400 |
500 |
600 |
|||||||||||||||
|
層數 |
(mm) |
3 |
4 |
5 |
||||||||||||||||||
|
傳動滾筒直徑 |
(mm) |
400 |
500 |
630 |
||||||||||||||||||
|
從動滾筒直徑 |
(mm) |
315 |
400 |
500 |
||||||||||||||||||
|
料斗運行速度 |
離心式 |
(m/s) |
1.4 |
1.6 |
1.8 |
|||||||||||||||||
|
混合式 |
/ |
/ |
1.2 |
1.4 |
1.3 |
|||||||||||||||||
|
主軸轉速 |
離心式 |
(r/min) |
67 |
61 |
54.6 |
|||||||||||||||||
|
混合式 |
/ |
/ |
45.8 |
42.5 |
40 |
|||||||||||||||||
五、設備用途
斗式提升機,有的行業也稱為斗提機。斗式提升機按結構形式可分為:皮帶式斗提機(DT)、環鏈式斗提機(HL)、板鏈式提升機(NE)。皮帶式斗提機,適合輸送常溫粉體,如干粉砂漿、干混砂漿、保溫砂漿、預拌砂漿、外加劑、勾縫劑、界面劑、膩子粉、化工細粉,經濟實用,缺點是皮帶容易跑偏,需要經常調節。板鏈式、環鏈斗式提升機適用于垂直輸送高溫、磨損性較大的粉狀、粒狀、及小塊狀物料,如糧食、煤、水泥、碎礦石等,輸送高度高40m。缺點是造價高、運轉聲音較大。
六、使用注意事項
1、斗式提升機不能倒轉,倒轉容易發生鏈條脫軌的現象,解決該故障很麻煩。
2、該設備啟動時應空負荷運轉,所以停機前一定要將物料排清。
3、應均勻喂料,如果超過該設備較大運輸能力,容易使下部憋死。
4、注意傳動軸、被動軸應定期潤滑。
5、定期檢查哪些部件容易損壞,然后根據實際情況進行更換
專注匠心,至誠服務,締造金質產品 !在制造業進入到智能化的今天,工匠精神并不過時,它的本質是自發專心致志地做事。鞏義市銘澤機械制造有限公司多年來兢兢業業、心無旁騖,堅守在機械行業領域,在斗式提升機等產品上一點點打磨“匠師”級人才!初心依舊,再創輝煌!銘澤人愿與您攜手共同實現偉大中國夢!
地址:河南省鞏義市站街開發區
服務熱線:18624915999
手機:0371-64422067
郵箱:dufujx@foxmail.com